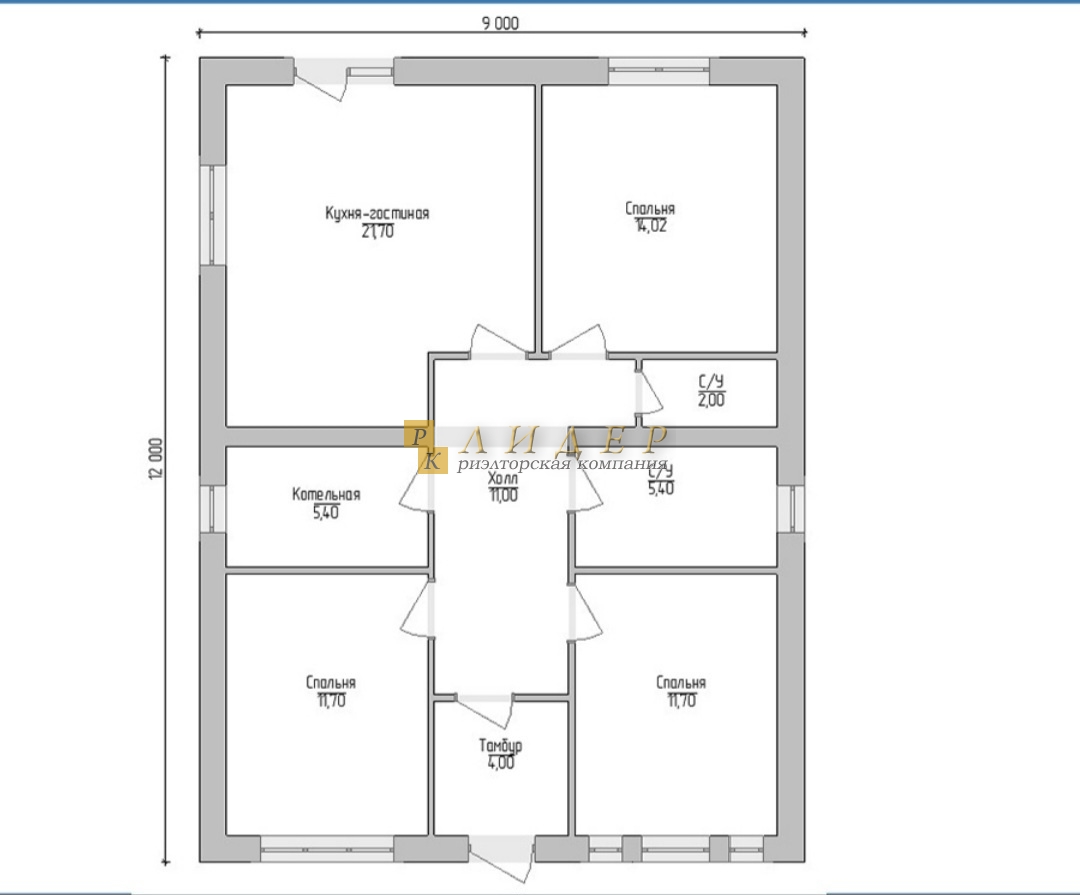
Продается дом, 95 кв.м., 1/1 эт

Обзор
Стоимость
7 200 000
Комнат в доме3
Категория землиИЖС
Тип комнатИзолированные
РемонтТребуется ремонт
Этаж1
Категория земли AvitoИндивидуальное жилищное строительство (ИЖС)
Материал стен (Авито дома)Газоблоки
Тип отопления cianАвтономное газовое
Тип строенияДом
Площадь, кв.м.95
Площадь участка, сот5
Этажность1
Материал стенГазоблоки
Адрес
Населенный пунктЖелыбино Деревня
Номер дома-
В избранное Продаётся дом на Правом Берегу

Проект "Майами" 95 кв.м.

Дома можно приобрести в ипотеку под 7,9% !!!
В стоимость входит:
✅фундамент - перевёрнутая чаша
✅стены - газоблок 400 мм D500
✅отделка фасада - облицовочный кирпич
✅покраска дома в 2 слоя
✅окна ПВХ премиум сегмента (REHAU или VEKA) 70 мм
✅крыша металлочерепица 0,5
✅входная дверь металлическая
✅утеплённая крыша 250 мм
✅закладные под коммуникации
✅монтаж вентиляционных каналов
✅межкомнатные перегородки
✅полы по бетону толщиной 250-300 мм

Расположение

Важно! На карте не всегда указано точное местоположение. Более точную информацию можно узнать у менеджера, разместившего объект